1 / 4The Maria
Comfort, Style & Efficiency Combined
Ideal For
About The Maria
Blending comfort, style, and efficiency, The Maria is a one-bedroom home designed for modern living. With high-end finishes, bright interiors, and a smart layout, this unit offers the perfect balance of privacy and openness. Ideal for singles, couples, or aging parents, The Maria adapts to your lifestyle while adding lasting value to your property.
Not Sure a Detached Unit is Right for You?
We also offer interior/basement conversions, garage conversions, and additions to existing homes. Every property is different, and we specialize in finding the right ADU solution for your needs and budget.
Explore All Configuration TypesKey Features
Every The Maria comes equipped with premium finishes and thoughtful design elements.
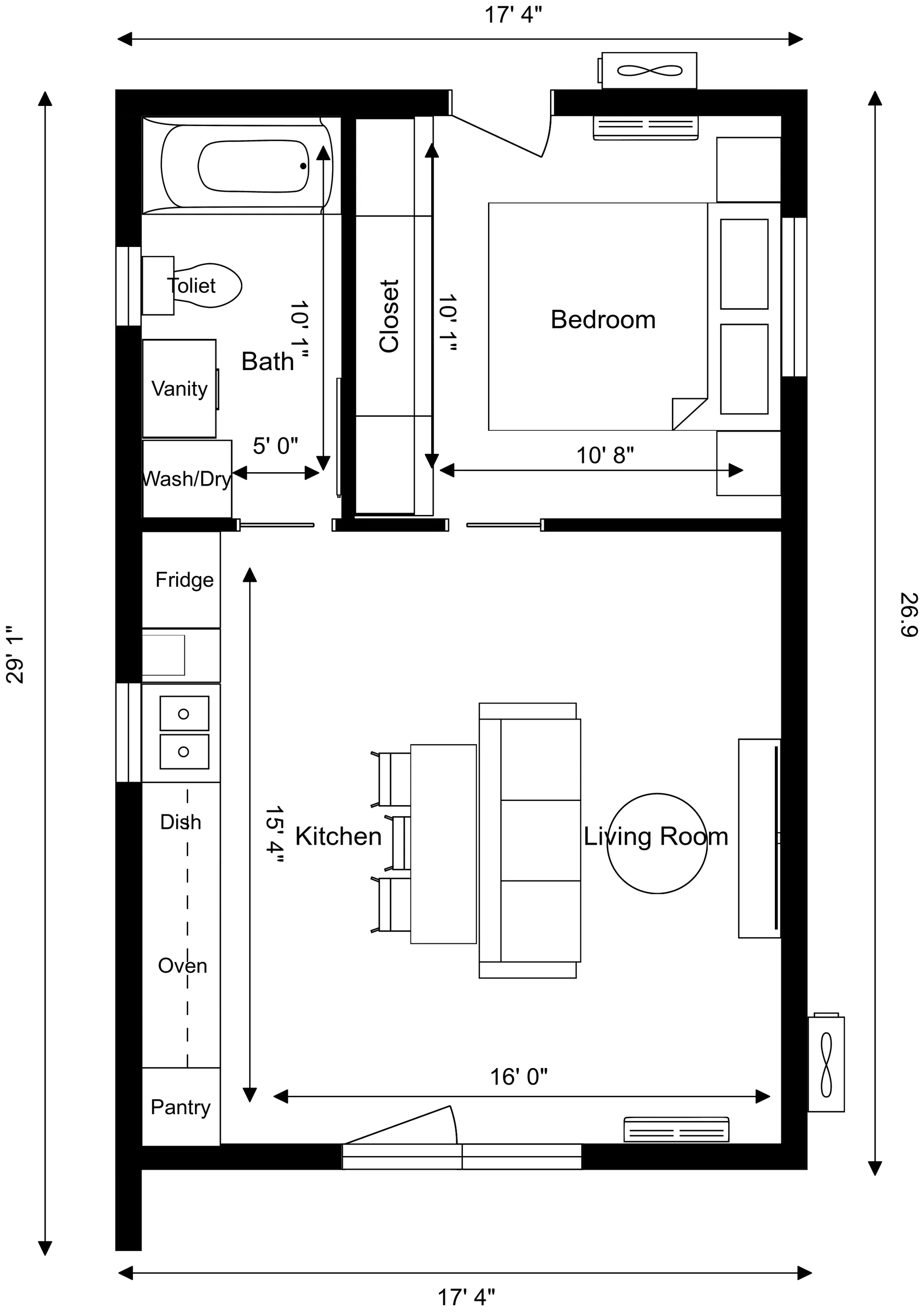
Floor Plan
409 square feet of thoughtfully designed living space.
Build Specifications
Premium materials and finishes included as standard with every The Maria.
Exterior
- RoofingStanding seam metal roof in matte black
- Siding7" premium horizontal vinyl siding, EPS foam-backed for insulation
- Siding ColorsGranite, Shamrock, Pebble Clay, Linen
- Windows & DoorsLarge black-framed terrace doors, vinyl windows with black exterior finish
- TrimBlack soffit, fascia, and eavestroughs
Standard Inclusions
- PlanningFull planning & building permits
- FoundationStandard helical piers (concrete slab optional)
- Climate ControlDuctless heat pump (heating & cooling)
- FramingOntario Building Code-compliant wood framing
- CountertopsQuartz countertops
- Windows & DoorsBlack vinyl windows & doors
- Water HeaterElectric water heater
- Electrical100 amp electrical panel
- WarrantyNew Home Tarion Warranty
Interior Options
- FlooringDurable vinyl plank (4 color options)
- Kitchen Cabinets3 colors, flat or shaker profiles
- Vanity3 colors, flat or shaker profile
- Closets & ShelvingBuilt-in options with 3 finish choices
- AppliancesFridge, stove, dishwasher, microwave with vent hood
- Kitchen40" upper cabinets, built-in pull-out garbage bin
- BathroomStandard fiberglass tub with surround
- Upgrade OptionWalk-in shower with glass door (+$2,500)
Explore Other Models
Not quite right? Check out our other ADU models.
321 sq ft
549 sq ftReady to Build Your The Maria?
Contact us today for a free consultation. We'll answer your questions and help you get started on your ADU project.
